EP ES08-WAi
Cena bez DPH
Ponúknite cenu
Tlač
INFO
Kategória
Ručne vedené vysokozdvižné vozíky
Značka / model
EP ES08-WAi
Rok výroby
2024
Stav
Nové/nepoužité
Krajina
Grécko
Mascus ID
86A68015
PODROBNOSTI
Typ pohonu
Elektrický
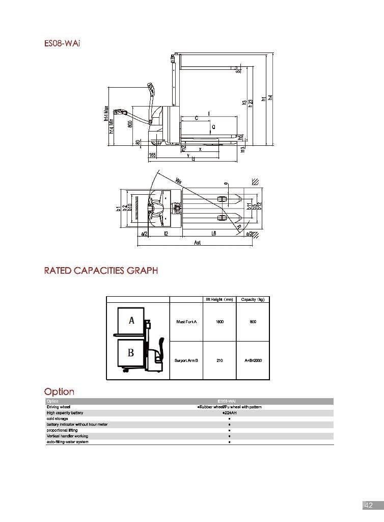
Zdvíhacia kapacita
800 kg
Dokumenty
Ďalšie informácie
SEMI ELECTRIC PEDESTRIAN STACKER
Product
ES08-WAi can bring pallets to ergonomical working height and carry two pallets at a time. With a powerful AC system, high strenght vertical gearbox and safe hydraulic system design, this truck will help to improve the productivity and make your work very easy and more productive.
EP Unique
Perfect traction on any surface
Features
The ES08-WAi has many great features that will help you improve your daily operations. Find out more.
Long sideways tiller
Optimum overview and safe working
Tiller head
With the new design of ergonomically tiller head, all buttons can be reached conveniently and comfortably.
Mast and chassis
Mast and chassis are assembled together, easy for maintenance.
ALEXANDROS SPATHARAS COMPANY
13, Agiou Kosma Aitolou Str., Evosmos 56224 Thessaloniki Θεσσαλονίκη Grécko
8
Roky na stránke MascusZískajte e-mailové upozornenie
